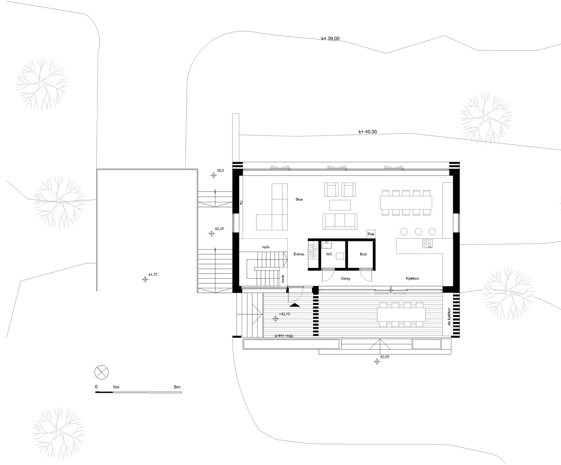
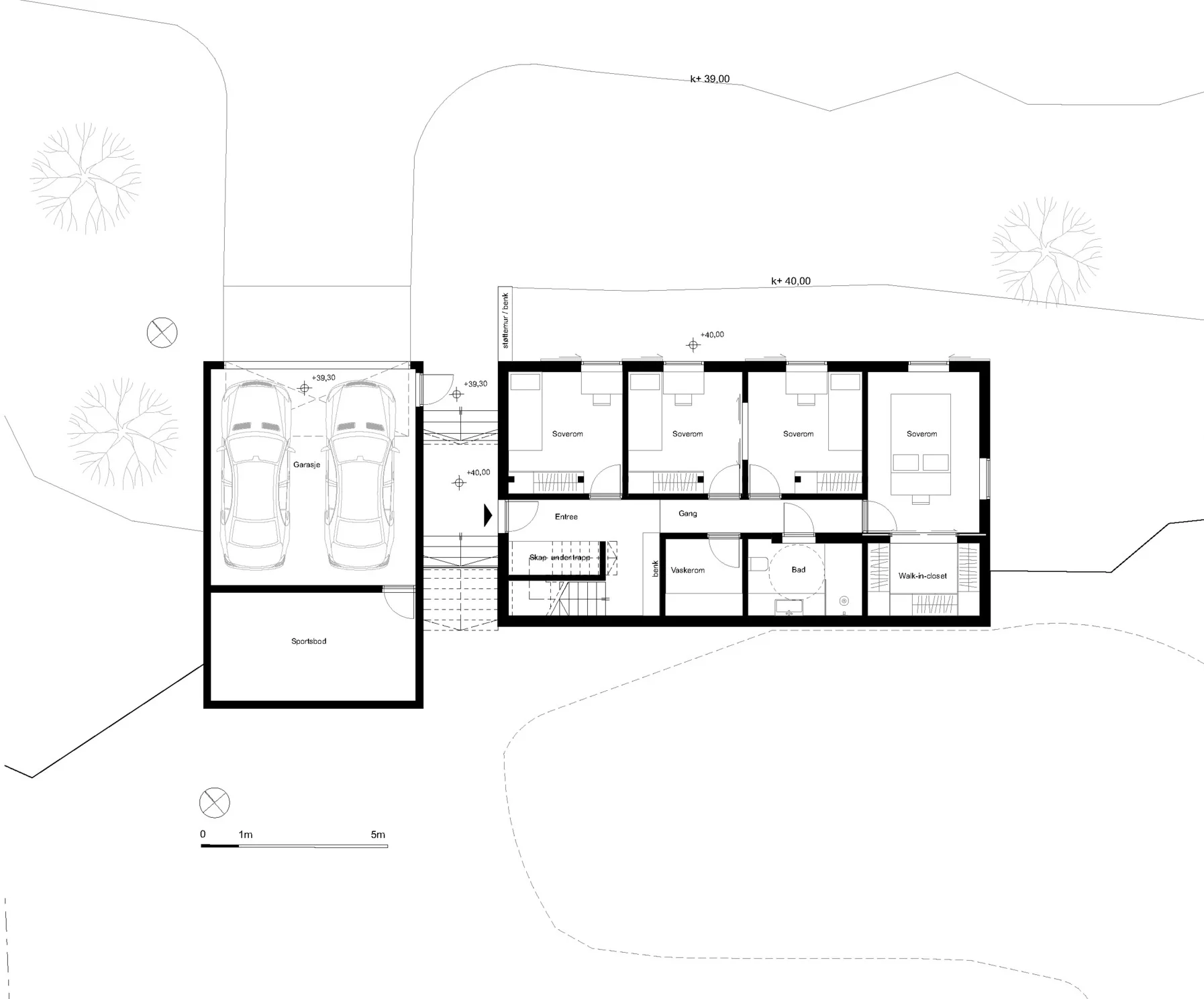
Romsveien
Sted: Åsgårdstrand I Program: Enebolig I Tiltakshaver: Privat I Areal: 160 m2 + garasje I Arkitekt: Fjord Arkitekter I Interiør: Fjord Arkitekter
